หลายคนอาจบ่นว่านับวันต้องอยู่คอนโดห้องเล็กลงทุกที แต่หารู้ไม่ว่าการอยู่ในพื้นที่เล็กๆ ที่พอดีตัวนั้น มีประโยชน์มากมาย ทั้งเสียค่าดูแลรักษาน้อย ไม่ต้องทำความสะอาดเยอะ ไม่ทำให้เราเสียตังไปกับสิ่งที่ไม่จำเป็นเพราะซื้อมาแล้วจะไม่มีที่เก็บ (555+)
พูดข้อดีไปตั้งเยอะ … จริงๆ คือ ที่ดินแพง ราคาคอนโดสูงขึ้น ห้องก็เลยต้องเล็งลงนั่นเอง T^T …
วันนี้เราเลยมีไอเดียแต่งห้องเล็กต่างๆ มาแชร์ให้ดูกัน เป็นไอเดียแต่งห้องจากหลายประเทศทั่วโลก ไล่ตั้งแต่ขนาดใหญ่ 59 ตร.ม. ไปจนถึงขนาดเล็กจิ๋ว 13 ตร.ม. จะได้เห็นไอเดียหลากหลาย ว่าห้องภายในคอนโดต่างๆ ก็ไม่จำเป็นต้องออกแบบเป็นรูปแบบ format ตายตัวอย่างที่เราเห็นกันอยู่ในตลาดคอนโดบ้านเราทุกวันนี้ก็ได้ค่ะ
ห้องขนาด 59 ตร.ม.
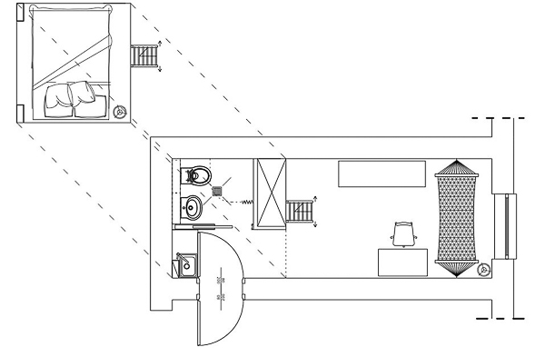
เริ่มต้นด้วยห้องสตูดิโอขนาด 59 ตร.ม. จากประเทศญี่ปุ่น ที่มีแปลนสี่เหลี่ยมผืนผ้าแคบยาว หน้ากว้างประมาณ 4 เมตรเหมือนลักษณะห้องในตึกแถวในเมืองไทยค่ะ ห้องนี้ใช้ความยาวของห้องให้เป็นประโยชน์ โดยการกั้นพื้นที่ด้านข้างประมาณ 80 ซม. ทำเป็นตู้เก็บของและเคาน์เตอร์ครัวติดผนัง แล้วปิดด้วยประตูบานเฟี้ยมซ่อนของข้างในเอาไว้อีกที (1)
เมื่อปิดประตูจะเหมือนกับเป็นผนังบ้านที่เรียบๆ โล่งๆ แถมฝุ่นไม่เข้าชั้นเก็บของด้วย
ประตูบานเฟี้ยมจะมีรางด้านฝ้าและบนพื้น สามารถเปิดพับมากองชิดผนังได้ กลายเป็นห้องครัวทันที
อีกด้านนึงของห้องจึงโล่งมาก เนื่องจากของเก็บเข้าตู้ไปหมดแล้ว ประกอบกับการเลือกเลือกใช้ตู้เป็นสีไม้อ่อนๆ และทาสีห้องสว่างๆ ค่ะ
เปิดตู้เคาน์เตอร์ครัวอีกที เมื่อถึงช่วงเวลาทำอาหาร ^^
ห้องขนาด 35 ตร.ม.
คอนโดขนาด 35 ตารางเมตร นี้เป็นไซส์ยอดฮิตของคอนโดมิเนียมในกรุงเทพฯ ในปัจจุบันนี้ แต่ห้อง 35 ตารางเมตร ที่เรายกตัวอย่างมาให้ดูกันวันนี้ เป็นห้องแบบสตูดิโอ จากกรุงมอสโก แม้จะเป็นห้องสตูดิโอที่มีพื้นที่ก็ใหญ่พอสมควรแต่ก็ยัง อยากจะได้เตียงนอนแบบเป็นส่วนตัว เลยทำเป็นเหมือนกล่องหรือตู้ใส่เตียงแทนกั้นพื้นที่เป็นห้องนอน คล้ายกับโรงแรมแคปซูล เพราะเห็นว่าความสูงฝ้าในห้องนอนไม่ต้องสูงมากก็ได้ พื้นที่ใต้เตียงเลยยังทำเป็นพื้นที่เก็บของเพิ่มได้อีก
พื้นที่นอนก็ขนาดพอดีกับเตียงเป๊ะๆ
ห้องขนาด 33 ตร.ม.
สำหรับคอนโดแบบ 33 ตร.ม. ที่เราทำมาให้ดูกันนี้มีไอเดียที่น่าสนใจอยู่ 3 อย่าง คือ
(1) การกั้นพื้นที่ห้องนอนให้พอดีกับเตียงนอน เพื่อเปิดพื้นที่ว่างและสเปซส่วนอื่นๆ ให้สามารถใช้งานได้อย่างเต็มที่
(2) การเอาเฟอร์นิเจอร์อย่างโต๊ะ หรือ ตู้เสื้อผ้ามาทำหน้าที่แทนผนังกั้นห้อง แทนที่จะต้องทำผนังทึบอย่างเดียวให้ดูแล้วอึดอัด
(3) จัดให้โต๊ะกับโซฟาตรงกับทีวี สามารถใช้งานได้พร้อมๆ กัน
พื้นที่ห้องนอนแทนที่จะใช้ผนั้งกั้นห้อง สามารถใช้ตู้เสื้อผ้า ชั้นวางทีวี และโต๊ะล้อมกรอบผนังได้ แค่นี้ก็เกิดเป็นพื้นที่ห้องนอนที่เป็นส่วนตัวแล้ว ส่วนพื้นที่ห้องนอนก็เอาแค่พอดีกับเตียงก็ได้
ถ้านั่งอยู่บนเตียงสามารถนั่งเขียนหนังสือหรือหยิบของบนโต๊ะได้เหมือนกัน สามารถทำที่เก็บของข้างตู้ทางขวาก็สามารถเก็บหนังสือ หรือของจุกจิกต่างๆ ได้
ข้างโต๊ะทำงานเป็นผนังห้องน้ำค่ะ ห้องนี้เค้าติด Particle Board ลายไม้ปิดอีกทีรวมไปถึงประตูห้องน้ำด้วย ทำให้ดูเป็นผนังเดียวกัน ไม่รู้สึกเหมือนกับนั่งทำงานอยู่หน้าห้องน้ำ ส่วนพื้นที่เหนือประตูก็ทำเป็นช่องเก็บของโดยรอบ ไม่ให้เปลืองเนื้อที่เลย
ห้องขนาด 24 ตร.ม.
ต่อไป มาดูห้องคอนโดขนาด 24 ตร.ม. ที่ Sydney ประเทศออสเตรเลีย เป็นห้องของคู่รักคู่หนึ่งค่ะ เปิดประตูเข้าห้องมาเป็นพื้นที่ครัวก่อน และทุกอย่างเก็บเข้าชิดผนังหมดเหมือนกัน และเลือกใช้ตู้โทนสีขาวที่ทำจากวัสดุเดียวกัน

ซึ่งไอเดียดีดีเป็นการที่ออกแบบให้โต๊ะกินข้าวมีล้อ สามารถเลื่อนไปเลื่อนมาได้ทั่วห้อง
และสามารถซ่อนเก็บใต้เคาน์เตอร์ได้เนี๊ยบกริบ !

ส่วนประตูห้องนอนที่เรามักใช้เป็นประตูกระจก ห้องนี้เค้าใช้เป็นประตูเหล็กฉลุลาย (Perforated Metal) สีขาว ที่ช่วยทำหน้าที่เป็นฉากกั้นห้องนอนและห้องนั่งเล่น แต่แสงธรรมชาติและอากาศยังผ่านเข้าไปได้ และยังแข็งแรงพอแขวนทีวีติดไว้ได้อีกแหน่ะ ! ทั้งนี้ฉากกั้นห้องสามารถพับได้ 2 ตอน เลยสามารถพับทีวีหันออกมายังห้องนั่งเล่นได้ด้วยค่ะ
ห้องขนาด 22 ตร.ม.
ส่วนห้องนี้ขนาดเพียง 22 ตารางเมตร จะมีหน้าตาเหมือนห้องแบบสตูดิโอของคอนโดบ้านเราแล้ว คือห้องน้ำและแพนทรี่ครัวอยู่ติดกับประตูทางเข้า แล้วก็จะเป็นพื้นที่โล่งๆ ด้านใน แต่ห้องนี้ต่อเติม คือ ทำ Built-in ชั้นลอยเพิ่ม เอาห้องนอนไปอยู่เหนือห้องน้ำ ความสูงของฝ้าในห้องน้ำจะน้อยลง

ส่วนพื้นที่ด้านข้างก็ทำเป็นตู้ติดผนัง เก็บของต่างๆ ภายในห้อง ถ้าเป็นห้องสูงก็เก็บของได้ไม่หวั่นเพราะทำบันไดที่เลื่อนไปซ้ายขวาได้

อีกฝั่งนึงของห้องมีไอเดียเล็กๆ ที่เป็นประโยชน์มาก คือ การเลือกใช้โต๊ะแคบยาวสองตัวต่อกัน ทำเป็นโต๊ะรับประทานอาหาร
และสามารถแยกเข้าชิดผนัง ทำเป็นโต๊ะทำงานได้ ! เออ อันนี้ง่าย ทำได้เลย
พาขึ้นมาดูเตียงนอนที่อยู่ชั้นลอย ความสูงจะแค่พอนั่งได้เฉยๆ นะ มีโต๊ะปลายเตียงเผื่อนั่งอ่านหนังสืออีกมุมด้วย
จัดพื้นที่ได้กระชับแบบนี้ เลยเหลือพื้นที่โล่งตรงกลางห้องกว้างๆ แบบนี้เลย
อีกห้องนึงจากกรุงมอสโก เป็นห้องสตูดิโอ
ห้องขนาด 13 ตร.ม.
ห้องสุดท้ายเป็นห้องขนาดเล็กกว่าห้องขนาดเล็กสุดในเมืองไทยอีก คอนโดในเมืองไทยทำไซส์นี้ไม่ได้นะคะ เล็กเกินไป ผิดกฎหมาย แต่สำหรับเมืองใหญ่ๆ หลายเมืองในโลก ที่พื้นที่แพงดั่งทอง และที่ดินจำกัดมากๆ ก็ทำคอนโดไซส์นี้กัน (เอาว่าอย่าต้องให้บ้านเราเป็นขนาดนั้นเลยเนอะ) … แปลนห้อง 13 ตร.ม. เป็นรูปสี่เหลี่ยมผืนผ้า มีหน้าต่างห้องแค่ด้านเดียว เปิดประตูเข้าห้องไปเจอพื้นที่แพนทรี่เล็กๆ หน้าห้องน้ำ เหนือห้องน้ำเลยทำเป็นพื้นที่เตียง ส่วนของห้องที่เหลือเลยเป็นพื้นที่โล่งๆ ทำเป็นห้องนั่งเล่นค่ะ

ยิ่งห้องเล็กต้องใช้พื้นที่ในแนวตั้งให้เป็นประโยชน์
ส่วนตู้เสื้อผ้าก็อยู่หลังบันไดที่สามารถเลื่อนไปซ้ายหรือขวาได้เวลาจะเปิดประตูเก็บของ
ส่วนของใช้ต่างๆ ที่มีขนาดเริ่มใหญ่ก็แขวนติดผนังไปเลย การรวบฟังก์ชั่นจำเป็นอย่าง แพนทรี่ครัว / ห้องน้ำ / ห้องนอนเข้าด้วยกัน โดยการซ้อนการใช้งานในพื้นที่ แค่นี้ก็ได้ห้องโล่งๆ แล้วหล่ะค่ะ
เฟอร์นิเจอร์อเนกประสงค์
แถมผิดจบบทความด้วยเฟอร์นิเจอร์อเนกประสงค์ เหมาะกับห้องขนาดเล็ก ทำหน้าที่เป็นทั้งชั้นวางทีวี ชั้นเก็บหนังสือ ตู้เสื้อผ้า ห้องเก็บของและเตียงนอน ! ซึ่งดีไซน์ก็ทำออกมาได้เท่ดี
ความกว้างของตู้นี้เท่ากับเตียงควีนไซส์ หลังตู้เสื้อผ้ายังมีห้องเก็บของอื่นๆ ได้อีก
ปีนขึ้นไปนอนบันชั้นสองของตู้ก็เป็นเตียงนอนแล้วค่ะ
หวังว่าจะได้ไอเดียไปแต่งห้องกันทุกคนนะคะ ^^
The post ไอเดียแต่งห้องคอนโดขนาด 13-59 ตร.ม. จากหลายประเทศทั่วโลก appeared first on รีวิวคอนโด บ้านเดี่ยว ทาวน์เฮ้าส์ ทาวน์โฮม โดยอยู่สบาย.คอม (YuSabuy.com).























