วันนี้จะพาไปสำรวจทำเลของ The Excel Ratchada 17 (ดิ เอ็กเซล รัชดา 17) เป็นโครงการคอนโดของ All Inspire Development ส่งมาทำตลาดในช่วง Q3 ของปีนี้ค่ะ คอนโด ดิ เอ็กเซล รัชดา 17 เป็นคอนโด Low Rise 4 อาคาร สูง 5 – 8 ชั้น โดยจะแบ่งเป็น 2 เฟส (ในทางปฏิบัติคือ 2 โครงการย่อยนั่นเอง) เฟสแรกจะเป็นอาคาร A-B และเฟสสองเป็นอาคาร C-D แต่ที่ดินจะไม่ได้อยู่ติดกันนะคะ มีถนนซอยเล็กๆ คั่นกลาง เลยเรียกได้ว่าเป็นคนละโครงการกัน แถมนิติบุคคลก็แยกกันด้วย
สิ่งที่ต่างกันคือ The Excel Ratchada 17 Phase A-B จะมีพื้นที่ส่วนกลางเยอะ และติดซอยรัชดาภิเษก 17 ลักษณะเหมือนคอนโดทั่วไป แต่ Phase C-D จะอยู่ในซอยย่อยของซอยรัชดา 17 อีกที และไม่มีพื้นที่ส่วนกลาง แต่วางราคาต่ำกว่า สำหรับคนที่ไม่ได้แคร์เรื่องการใช้ facilities แต่อยากได้ราคาถูก ในทำเลที่ไม่ต่างกันมาก … ถ้ายังนึกภาพไม่ออก เรามาเริ่มพรีวิว The Excel รัชดา 17 กันเลยดีกว่า
ส่วนอีกสองโครงการที่เปิดตัวพร้อมกัน คือ คอนโด The Excel Hideaway สุขุมวิท 50 และ The Excel Hideaway สุขุมวิท 71 ซึ่งเราก็ได้ไปทำรวจทำเลไว้แล้วเช่นกัน สามารถไปอ่านพรีวิวได้ที่นี่ค่ะ >>>
เริ่มกันที่ข้อมูลเบื้องต้นโครงการกันก่อน
The Excel Ratchada 17
(ดิ เอ็กเซล รัชดา 17)
- เจ้าของโครงการ >>> บริษัท ออลล์ อินสไปร์ ดีเวลลอปเม้นท์ จำกัด (มหาชน)
- ที่ตั้งโครงการ >>> ซอยรัชดา 17 ถนนรัชดาภิเษก แขวงดินแดง เขตดินแดง
- ขนาดที่ดิน >>>
- Phase 1 อาคาร A-B >>> 1-3-29 ไร่
- Phase 2 อาคาร C-D >>> 0-3-53 ไร่
- จำนวนชั้นและจำนวนอาคาร >>> แบ่งเป็น 2 เฟส เฟสละ 2 อาคาร
- Phase A-B >>> อาคาร A สูง 8 ชั้น, อาคาร B สูง 5 ชั้น
- Phase C-D >>> อาคาร C สูง 5 ชั้น, อาคาร B สูง 5 ชั้น
- ประเภทห้องและขนาดห้อง >>>
- 1 ห้องนอน 25, 28, 29.20, 30.50, 33.50 ตารางเมตร
- 1 ห้องนอน Plus 34.9 ตารางเมตร
- จำนวนยูนิต >>>
- Phase A-B >>> รวม 167 ยูนิต + ร้านค้า 1 ยูนิต
- Phase C-D >>> รวม 64 ยูนิต
- ที่จอดรถ >>>
- Phase A-B >>> 40%
- Phase C-D >>> 42%
- ราคาขายเริ่มต้น ณ วันทำพรีวิว >>> 1.39 ล้านบาท
- ราคาเฉลี่ยต่อตารางเมตร >>> n/a บาท/ตร.ม.
- พิกัดโครงการ >>> 13.786258, 100.567934
- เริ่มก่อสร้าง >>> กุมภาพันธ์ 2561
- คาดว่าจะแล้วเสร็จ >>> มกราคม 2562
- เว็บไซต์โครงการ >>> คลิกที่นี่
- เบอร์ติดต่อ >>> 02-029-9999
**ภาพ Perspective ยังไม่ Final นะคะ
ส่องทำเล
เราเดินทางไปยังโครงการ The Excel Ratchada 17 ด้วยถนนรัชดาภิเษก วิ่งจากแยกรัชดา-ลาดพร้าว มุ่งหน้าเข้าสู่แยกรัชดา-สุทธิสาร โดยขับชิดเลนขวาลงอุโมงค์ผ่านแยกไปได้เลย จากนั้นให้ขับอยู่เลน 2 จากซ้าย เพื่อเลี้ยวกลับรถที่แยกห้วยขวางค่ะ (จุดนี้ถ้าอยู่ชิดซ้ายจะบังคับตรงไป, ชิดเลน 3-4 จะลงอุโมงค์) พอกลับรถมาแล้วก็สามารถขับเข้าชิดเลนซ้ายได้เลย สังเกตโพไซดอนและ Quinn Condo จะอยู่หน้าปากซอยรัชดา 17 พอดี จากนั้นก็ขับเข้าซอยตามทางไปเรื่อยๆ ประมาณ 650 เมตร เลยโรงแรมมาเวอร์ริครัชดาที่มีสีสันสะดุดตาไปหน่อย ก็จะเป็นที่ตั้งโครงการ The Excel รัชดา 17 (Phase อาคาร A-B) อยู่ทางขวามือค่ะ
สำหรับ The Excel รัชดา 17 (Phase อาคาร C-D) เมื่อเลี้ยวเข้าซอยรัชดา 17 ไปแล้ว พอข้ามคลองห้วยขวาง ให้เลี้ยวขวาเข้าซอยข้าง Universe แมนชั่น ซึ่งจะถึงก่อนโรงแรมมาเวอร์ริครัชดา จากนั้นขับตามทางเข้าไปเรื่อยๆ ประมาณ 160 ที่ตั้งโครงการจะอยู่ทางขวามือค่ะ
มาดูตำแหน่งรอบๆ ตัวคอนโดก่อนว่ามีอะไรอยู่ตรงไหนกันบ้าง
บริเวณแยกรัชดา-สุทธิสาร จะเป็นจุดตัดของถนนรัชดาภิเษกกับถนนสุทธิสารวินิจฉัย ซึ่งถนนสุทธิสารฯ จะเป็นถนนรองวิ่งเชื่อมถนนวิภาวดีรังสิตและถนนรัชดาภิเษกเข้าด้วยกัน จึงค่อนข้าง Popular มาก มีคนสัญจรผ่านไปมาเยอะ และมีร้านค้าเพียบ ส่วนซอยรัชดา 17 (ซอยอินทามระ 45) จะวิ่งขนานไปกับถนนสุทธิสารวินิจฉัยเลยค่ะ สามารถออกถนนใหญ่ได้เหมือนกันและยังไปทะลุออกซอยข้างมหาวิทยาลัยหอการค้าไทยได้อีกด้วย แต่บรรยากาศของรัชดา 17 และรัชดา 19 จะต่างกัน เพราะส่วนใหญ่รัชดา 17 จะเป็นที่อยู่อาศัย ส่วนของอาคารพาณิชย์ร้านค้าตึกแถวไม่เยอะเท่าไหร่ จึงดูสงบกว่าค่ะ
ถนนรัชดาภิเษก เป็นถนนที่ยาววิ่งเชื่อมมาตั้งแต่แยกพระราม 9 ย่าน CBD แห่งใหม่ ไปลาดพร้าว, พหลโยธินได้ ช่วงแยกรัชดา-สุทธิสาร ตอนกลางวันจะมีบรรยากาศเป็นสถานที่ทำงาน มีตึกสำนักงานใหญ่ธนาคารธนชาต, เมืองไทยประกันชีวิต อยู่ฝั่งตรงข้าม และมีตลาดเมืองไทยภัทร สำหรับพนักงานออฟฟิศ ถ้าเลยไปทางสถานีรัชดาภิเษก จะเป็นแหล่งโรงแรมและโชว์รูมวัสดุเกี่ยวกับบ้าน เช่น โรงแรม Lantana Resort, บุญถาวร, Furniture Store บุญถาวร, Podium Home Center&lighting, Ceramique
หากดูเฉพาะเพื่อนบ้านใกล้ๆ ของคอนโด The Excel Ratchada 17 นั้น ไล่เข้าไปตั้งแต่ MRT สุทธิสารประตู 4 ที่อยู่ใกล้โครงการที่สุดนั้น โผล่ขึ้นมาจะเจอตึกแถวริมถนน (หมายเลข 1) ต่อด้วยตึกธนาคารธนชาต (หมายเลข 2) ที่ชั้นล่างมีร้านอาหารอยู่พอสมควร ทั้ง Max Valu, McDonald’s, ร้านบิงซู, ร้านสุกี้โบราณ เดินพ้นตึกธนชาตมาจะถึงปากซอยรัชดา 17 ตรงข้ามกับแหล่งบันเทิงของท่านชายอย่างโพไซดอน (หมายเลข 3)
ใครขี้เกียจเดินเข้าซอยก็มีพี่วินมอไซต์อยู่ตั้งแต่ต้นซอยเข้าไปเลย ซึ่งนั่งพี่วินไปก็สะดวกกว่า แทนที่จะต้องเดินเข้าออกทุกวัน ถ้าเข้าซอยไปนิดนึงจะผ่านคอนโด Quinn Condo (หมายเลข 4) ที่เห็นโดดเด่นเพราะเป็นตึกสูง ต่อด้วยโรงแรม Watana อยู่ติดๆ กัน (หมายเลข 5) จากนั้นจะมีทางหัวมุม เป็นที่ของคอนโด The Kris Ratchada 17 (หมายเลข 6) ติดกับโรงแรมใหม่ STAY Hotel Bangkok (หมายเลข 7) ถัดจากนั้นจะเริ่มเป็นบ้านพักอาศัยทั่วไป มีอพาร์ตเมนต์แทรกและมีร้านอาหารบ้าง เช่น อพาร์ตเมนต์ ถิ่นทอง พาวิลเลี่ยน (หมายเลข 8) อยู่ตรงข้ามกับ Siamaze Hotel (หมายเลข 9) ถัดเข้ามามี Bangkok 68 อยู่ตรงข้ามกับ Universe Mansion (หมายเลข 10) ที่อยู่ติดกับซอยประชาสุข ที่เป็นที่ตั้งของ The Excel Ratchada 17 (เฟส 2) ค่ะ เลยจะเข้าถึงลำบากกว่า เฟส 1 และไม่มีพื้นที่ส่วนกลางด้วย แต่ก็ข้อดีก็คือราคาขายที่ถูกลง สำหรับคนที่อยากได้ทำเลเดียวกัน แต่มีงบประมาณไม่เยอะ และก็มีราคาส่วนกลางถูกกว่านั่นเอง trade-off กันไป
ถัดเข้ามาในซอยรัชดา 17 กันต่อ มีโรงแรมมาเวอร์ริครัชดา (หมายเลข 11) ที่เราใช้เป็นจุดสังเกตก่อนถึงโครงการ The Excel รัชดา 17 เพื่อนบ้านทั้งด้านซ้ายด้านขวาและฝั่งตรงข้าม เป็นบ้านพักอาศัยหมดเลย เลยโครงการไปอีกหน่อยจะถึงแยกที่ตัดกับถนนประชาสุข มี 7-Eleven (หมายเลข 12) , ป้อมตำรวจ (หมายเลข 13) แสดงให้เห็นว่าคนอยู่อาศัยแถวนี้เยอะมาก ถ้าเลี้ยวขวาจะลัดไปออกถนนสุทธิสารวินิจฉัยเพื่อไปซื้อของเล็กๆ น้อยๆ ตามร้านค้าตึกแถวต่างๆ หรือลัดไปออกถนนวิภาวดีรังสิตได้ในระยะทาง 1 กิโลเมตรค่ะ
จากตรงป้อมตำรวม ถ้าเลี้ยวซ้ายจะไปออกถนนวิภาวดีรังสิตข้าง ม.หอการค้าไทย ได้เช่นกัน และถ้าขับตรงไปจะเข้าซอยอินทามระ 34 ซึ่งส่วนใหญ่จะเป็นบ้านพักอาศัยและอพาร์ตเมนต์ ส่วนบรรยากาศถนนประชาสุขจะมีตึกแถวเยอะขึ้น
โดยรวมแล้ว ซ.รัชดา 17 หรือซอยอินทามระ 45 จะเป็นแหล่งที่พักอาศัยหนาแน่น แต่ด้วยถนนรัชดามีตึกสำนักงานหลายแห่ง และอยู่ไม่ไกลจากย่านพระราม 9 มากนัก เลยมีพวกอพาร์ตเมนต์เยอะพอสมควร ประกอบกับเส้นรัชดาฯ เป็นแหล่งท่องเที่ยวยอดฮิตของชาวจีน จึงมีโรงแรมใหญ่ๆ ติดถนน จนถึงโรงแรมเล็กๆ ในซอย อยู่มากพอสมควร เป็นทำเลที่มีความหลากหลายจริงๆ ค่ะ
วันที่เราไปสำรวจพื้นที่โครงการ The Excel รัชดา 17 จะยังกั้นด้วยรั้วเก่าๆ อยู่ มีหน้าโครงการติดถนนกว้าง 21 เมตร ภายในเป็นที่ดินเปล่าและมีต้นไม้อยู่บางส่วน ต้องรอเคลียร์ที่อีกทีค่ะ
ด้านข้างติดกับบ้านพักอาศัยและตึกสีฟ้าคือโรงแรม Maverick
ฝั่งตรงข้ามก็เป็นกลุ่มบ้านพักอาศัยอีกเช่นกัน สูง 2 ชั้น
เยื้องๆ เป็นร้านขายต้นไม้ มองตรงไปไม่ไกลก็ถึงบริเวณแยกที่ตัดกับถนนประชาสุขค่ะ ก่อนจะไปสำรวจกันต่อแวะเข้าซอยประชาสุขไปดูเพื่อนบ้านของ The Excel รัชดา 17 (Phase C-D) กันบ้าง
.
สำหรับ Phase C-D ตอนนี้ใช้เป็นที่จอดรถยนต์ค่ะ ด้านหลังจะติดกับตึกสูง 4 ชั้น ด้านข้างติดที่ดินเปล่าของเอกชน บ้านพักอาศัย และตึกแถว
สุดซอยจะเป็นบ้านพักอาศัยเหมือนกันค่ะ ส่วนฝั่งตรงข้ามจะเป็นที่ดินของ The Excel Ratchada 17 Phase A-B นั่นเอง คือจะมองเห็นหลังตึก A, B แต่เดินทะลุหากันไม่ได้นะ
ต้นไม้เพียบ
และมุมนี้จะเป็นหลังบ้านของหลังที่อยู่ติดกับ Phase A, B ค่ะ
ถัดไปก็โรงแรมมาเวอร์ริครัชดา
เพื่อนบ้านจะเป็นบ้านเดี่ยวสูง 1 – 2 ชั้น หน้าตาบ้านบางหลังยังเป็นโครงสร้างไม้ค่ะ
ทีนี้กลับมายังที่ตั้งโครงการอีกครั้ง แล้วขับย้อนไปถนนใหญ่รัชดาภิเษกกันต่อ
ทีนี้มาดูบรรยากาศถนนรัชดาภิเษกกันต่อเลย ไล่ไปทางแยกสุทธิสาร, รัชดากันก่อน
ในทางกลับกันมาดูบรรยากาศตั้งแต่รัชดา 17 ไปทางศูนย์วัฒนธรรม, พระราม 9 กันบ้าง
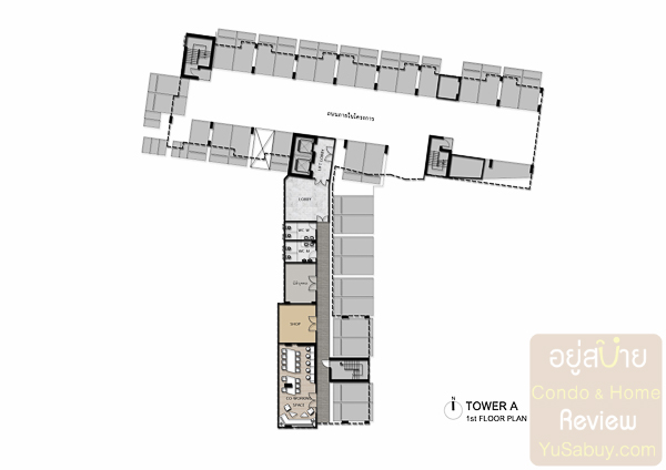
แปลนคอนโด
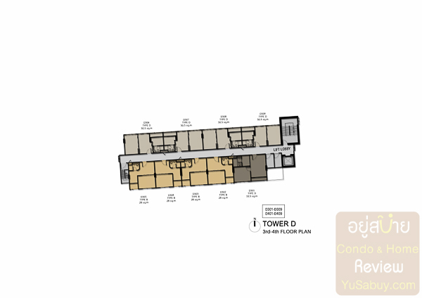
เมื่อดูจากแปลน The Excel รัชดา 17 จะเห็นว่ามีที่ดินแบ่งเป็น 2 แปลง แปลงล่างเป็นส่วนของ Phase A-B มีทางเข้าออกซอยรัชดา 17 ส่วน Phase C-D จะอยู่ด้านบน เข้าออกด้วยซอยประชาสุขค่ะ ซึ่งเนื้อที่ของเฟส 2 หรือ C-D จะมีพื้นที่น้อยกว่า เป็นอาคารสูง 5 ชั้นทั้งสองตึก ไม่มีพื้นที่ส่วนกลาง ส่วนตึก A จะอยู่บนที่ดินแปลงใหญ่ บริเวณที่มีเนื้อที่มากที่สุด จึงทำเป็นตึกสูง 8 ชั้นได้ ในขณะที่อาคาร B จะอยู่ลึกเข้ามาด้านใน เป็นตึกสูง 5 ชั้นและมีชั้นดาดฟ้าเป็นพื้นทีส่วนกลางค่ะ
ตัวคอนโดจะเริ่มห้องพักอาศัยตั้งแต่ชั้น 2 ขึ้นไป ทำให้ชั้นล่างสามารถจอดรถใต้อาคารได้โดยรอบ คิดเป็น 40% เฟส A-B และ 42% สำหรับเฟส C-D ถือว่าพอสมน้ำสมเนื้อกับราคาคอนโดและทำเล


พื้นที่ส่วนกลาง
Facilities ส่วนใหญ่จะอยู่บนชั้น 5 ของอาคาร B ซึ่งใช้ได้เฉพาะลูกบ้านอาคาร A, B เท่านั้นนะคะ ประกอบไปด้วยสระว่ายน้ำ, Co-Working Space, ห้องฟิตเนส และสวนพักผ่อน
ในภาพแรกจะเป็นรูปของตึก A ที่สูง 8 ชั้น เริ่มห้องพักอาศัยตั้งแต่ชั้น 2 ขึ้นไป อาคาร B อยู่ทางขวามือที่เป็นอาคารสูง 5 ชั้น ที่ชั้น 5 เป็นพื้นที่ส่วนกลางต่างๆ
บรรยากาศบริเวณสระว่ายน้ำ
พื้นที่ Co-Working Space มานั่งทำงาน, ทำการบ้านกันได้
**ทั้งนี้ภาพ Perspective ยังไม่ Final นะคะ
พาไปเดินเล่นรอบๆ โครงการ The Excel Ratchada 17 กันมาแล้ว ทำเลโครงการห่างจาก MRT สุทธิสาร ประมาณ 1 กิโลเมตร ถามว่าไกลไหม? ก็ถือว่าไกลอยู่ เวลาเข้าออกก็คงต้องใช้บริการพี่วินมอเตอร์ไซต์ หรือ Shuttle Bus Service ของทางโครงการ แต่ระยะห่างที่มากหน่อย ก็แลกมาด้วยราคาที่ถูก และจับต้องได้ง่าย ไม่เป็นภาระมากสำหรับคนทำงาน หรือมนุษย์เงินเดือนทั่วไป
ลักษณะโครงการที่แยกออกเป็น 2 เฟส แต่ละเฟสแยกนิติบุคคลกันชัดเจน เพื่อทำราคาขายให้แตกต่างกัน โดยเฟสแรก (อาคาร A-B) เป็นเฟสที่ติดถนนซอยรัชดาภิเษก 17 เรื่องของ Exposure และ Accessibility นั้นดีกว่าเฟส 2 (อาคาร C-D) ที่เข้าทางซอยย่อยมากอยู่แล้ว และเฟส 1 ก็ให้ Facilities ต่างๆ เช่น สระว่ายน้ำ, ฟิตเนส , co-working space มาด้วย ส่วนเฟส 2 จะไม่มี facilities แต่วางราคาขายถูกกว่า สำหรับคนที่ไม่ต้องการใช้ facilities พวกนี้ แต่ต้องการราคาที่ถูก ซื้อหาง่าย หรือเอาไว้ปล่อยเช่าแข่งกับตลาดอพาร์ตเมนต์นั่นเอง
ถ้าข้อมูลเป็นประโยชน์ ช่วยกด Like กด Share ให้ทีมงานด้วยนะคะ ^_____^
The post THE EXCEL Ratchada 17 (The Excel รัชดา 17) คอนโด Low Rise 4 อาคาร ห่าง MRT สุทธิสาร 1 กม. [พรีวิวทำเล] appeared first on รีวิวคอนโด บ้านเดี่ยว ทาวน์เฮ้าส์ ทาวน์โฮม โดยอยู่สบาย.คอม (YuSabuy.com).






























































































